
2006 Citation Award for Unbuilt Commissioned Architecture - AIA Kansas City
2008 Excellence in Architecture Award - CSI Kansas City
2008 Citation Award - American School & University for Educational Interiors Showcase
2009 Merit Award for Excellence in Architecture - AIA Kansas City
Design Architect: Kyu Sung Woo Architects
Photographers: Justin Miers and Timothy Hursley
The museum’s design is rooted in material authenticity and bold structural expression. Clad in locally sourced Kansas limestone, the building establishes a strong connection to the region’s geological history. Expansive glass facades maximize transparency, creating a seamless dialogue between interior exhibition spaces and the surrounding campus.
A striking 22-foot cantilever extends over the museum’s entrance, reinforcing the institution’s contemporary character. This bold architectural move is further elevated by Leo Villareal’s LED installation, Microcosm, which transforms the museum into a glowing beacon at night.



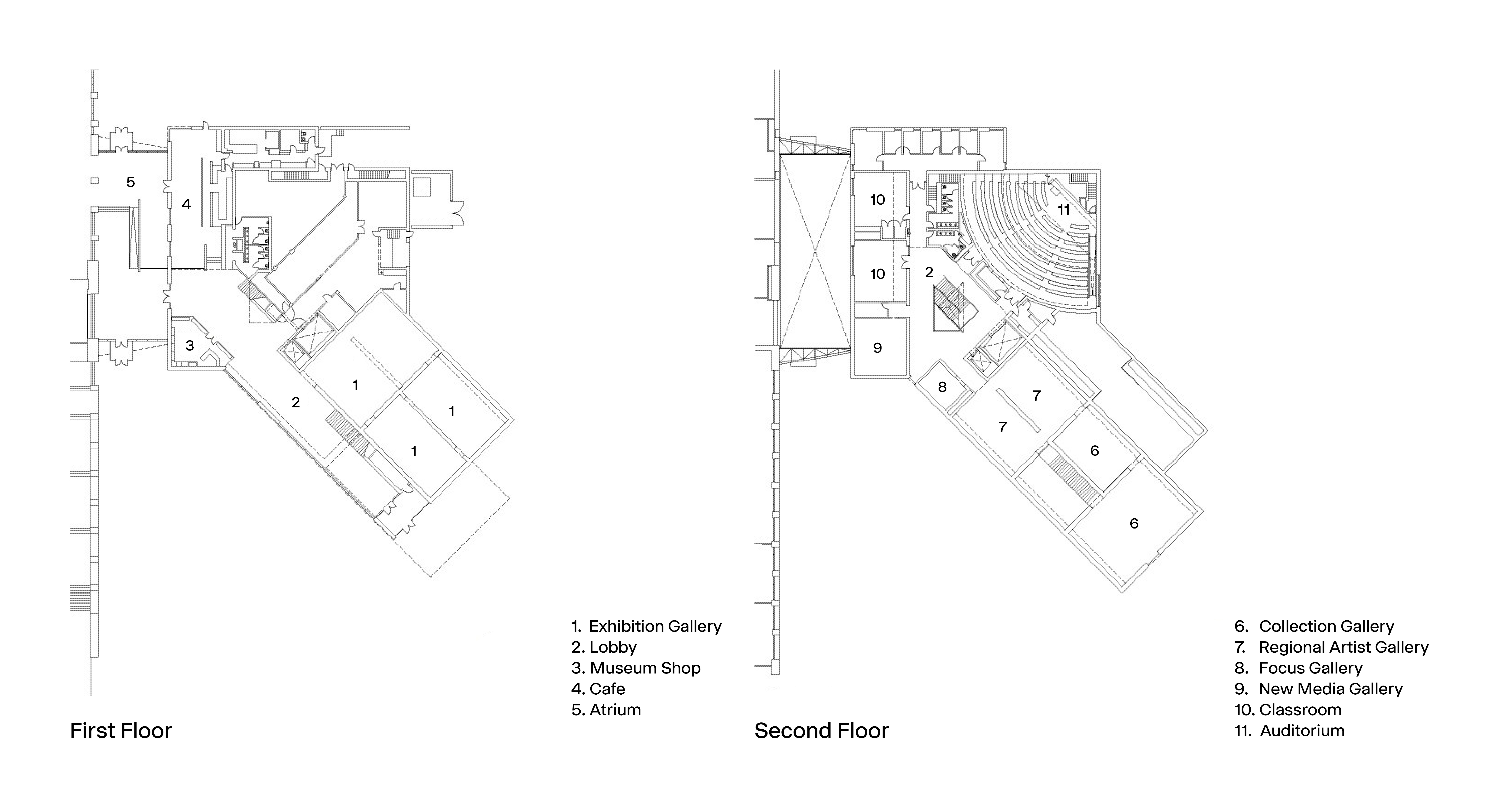
The museum features 11,000 SF of gallery space for temporary shows, permanent exhibitions, and special events with local and national artists. Rift sawn white oak floors give the galleries warmth and scale, and limestone floors define the public spaces and the stairs. Natural light from clerestory windows bathe walls in natural light, enhancing the viewing experience while blurring the boundary between indoor and outdoor environments.



Retaining walls and carefully designed exterior spaces weave the building into the landscape, while a 3000 SF double-height atrium wrapped in perforated metal fosters a sense of openness and connection between the museum, the adjacent technology center, and an internal sequence of courtyards.

The Nerman Museum is a place of inspiration, education, and community engagement. With a design that balances bold architectural expression with functionality, the institution stands as a testament to how contemporary design can elevate cultural spaces. Through its role as AOR, our team ensured that this vision was not only realized but deeply embedded within the fabric of the campus community and region.

